Espace propriétaire

Votre recherche

Douai (59500)

330 m²

Immeuble de rapport 330m2 DOUAI INVESTISSEMENT

289 500 €
Ref : V420006777
Découvrir le bien

Baisse de prix – Opportunité rare pour investisseurs avisés !


L'agence Côté Immobilier vous propose un immeuble de rapport de 330 m², idéalement situé dans un secteur dynamique et recherché de Douai, à proximité des commodités et des transports. Idéal investisseurs !

Ce bien constitue une opportunité d’investissement particulièrement attractive, tant par sa configuration que par sa rentabilité immédiate et son potentiel de valorisation.

Au rez-de-chaussée, vous trouverez un local commercial de près de 200 m², libre d’occupation, avec une entrée indépendante. Ce vaste espace est parfaitement adapté à un commerce, une activité de bureau, de restauration ou une profession libérale.

Les étages accueillent deux appartements de deux pièces, entièrement rénovés et occupés !

  • 1er étage : appartement de 49 m²

  • 2ème étage : appartement de 44 m²

Chaque appartement à été entièremen trénovée.

De plus, l’isolation de l’ensemble de l’immeuble a été entièrement refaite, garantissant un confort thermique optimal et une meilleure maîtrise des charges.

À noter : aucune vacance locative enregistrée jusqu’à présent, preuve de la forte demande locative dans ce secteur.

Un bien rare, parfait pour les investisseurs souhaitant optimiser leur portefeuille immobilier avec un produit sécurisé, immédiatement exploitable, et sans travaux à prévoir.

Contactez-nous dès maintenant au 06.59.59.59.07 pour organiser une visite ou obtenir plus d’informations.

Informations sur les risques disponibles sur : www.georisques.gouv.fr

Propriétaires, profitez de notre forte demande acquéreurs pour vendre dans les meilleures conditions.

Estimation gratuite – Conseils personnalisés – Accompagnement complet

TRAD_ZEPHYR_Caracteristique TRAD_ZEPHYR_Valeurs
Code postal 59500
Nombre de niveaux 3
TRAD_ZEPHYR_Caracteristique TRAD_ZEPHYR_Valeurs
Mode de chauffage Electrique
Type de chauffage Radiateur
Format de chauffage Individuel
Balcon NON
Cave OUI
TRAD_ZEPHYR_Caracteristique TRAD_ZEPHYR_Valeurs
Prix de vente honoraires TTC inclus 289 500 €
Prix de vente honoraires TTC exclus 274 500 €
Honoraires TTC à la charge acquéreur 5,46 %
Taxe foncière annuelle 2 501 €
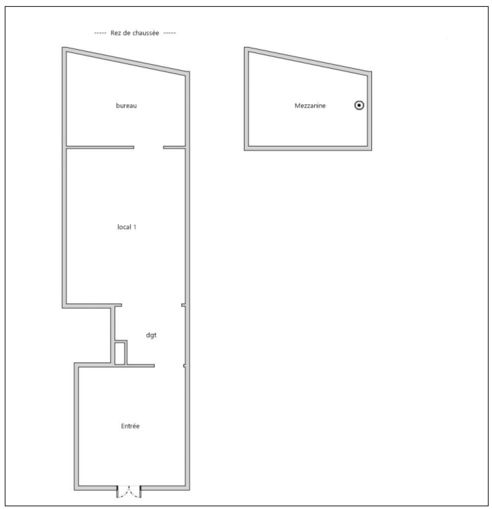
Rez de chaussée
LOCAL COMMERCIAL 199 m²

entrée 35.48 m²

local 67.28 m²

degagement 13.51 m²

bureau 40.52 m²

mezzanine 42.38 m²

Etage 1
chambre 17.56 m²

pièce à vivre 14.42 m²

cuisine 8.40 m²

couloir 5.53 m²

4.42 m²

Etage 2
chambre 12.12 m²

pièce à vivre 23.51 m²

WC 2.19 m²

entrée 2.24 m²

DPE GES
  • Commerces et santé
  • Loisirs
  • Ecoles
  • Transports
  • Pratique
Contacter pour ce bien
L'agence
Téléphone 09 80 87 07 50
Adresse
206 Rue De Paris 59500 Douai

* Champ obligatoire

Les informations recueillies sur ce formulaire sont enregistrées dans un fichier informatisé par La Boite Immo agissant comme Sous-traitant du traitement pour la gestion de la clientèle/prospects de l'Agence / du Réseau qui reste Responsable du Traitement de vos Données personnelles. La base légale du traitement repose sur l'intérêt légitime de l'Agence / du Réseau. Elles sont conservées jusqu'à demande de suppression et sont destinées à l'Agence / au Réseau. Conformément à la loi « informatique et libertés », vous disposez des droits d’accès, de rectification, d’effacement, d’opposition, de limitation et de portabilité de vos données. Vous pouvez retirer votre consentement à tout moment en contactant directement l’Agence / Le Réseau. Consultez le site https://cnil.fr/fr pour plus d’informations sur vos droits. Si vous estimez, après avoir contacté l'Agence / le Réseau, que vos droits « Informatique et Libertés » ne sont pas respectés, vous pouvez adresser une réclamation à la CNIL. Nous vous informons de l’existence de la liste d'opposition au démarchage téléphonique « Bloctel », sur laquelle vous pouvez vous inscrire ici : https://www.bloctel.gouv.fr Dans le cadre de la protection des Données personnelles, nous vous invitons à ne pas inscrire de Données sensibles dans le champ de saisie libre.
Ce site est protégé par reCAPTCHA, les Politiques de Confidentialité et les Conditions d'Utilisation de Google s'appliquent.

Découvrir nos outils